Logo



2020 Neubau 2 FH

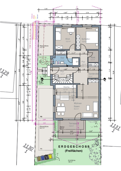
Abbruch EFH und Neubau eines 2 FH mit Teilunterkellerung

Wohnfläche (EG, OG, DG) 277 m²
BRI (Erweiterung) 1.580 m³

ausgeführte Leistungsphasen 1-8:

Maßnahmenkatalog / Besonderheiten:
- Abbruch vorh. altes Elternhaus
- Ensembleschutz / Denkmalgeschütze Gebäude in der Nachbarschaft
- Vorgabe Holzfenster in der Straßen-/Giebelseite
- WU Keller
- Fenster-Putzfaschen Straßenseitig, Besenputz, Krüppelwalm
- Pelletofen zur Trinkwasser und Gebäudeerwärmung


Zurück zur Projektübersicht


© Dipl.-Ing. Guido Krämer, 2015, Impressum - Datenschutz