Logo



2016 Scheunenausbau zum EFH


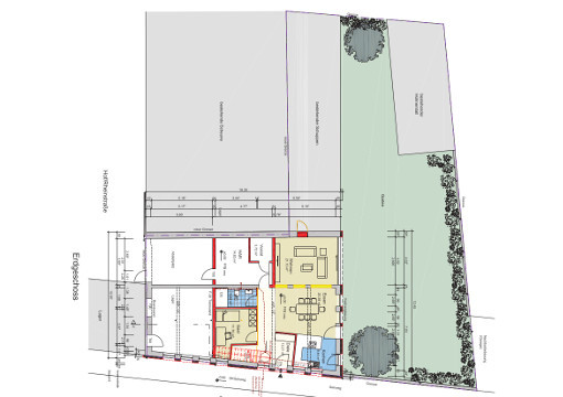
Scheunenausbau zum EFH

Überbaute Fläche 115m²
Wohnfläche 184m²
BRI 645m³

Leistungen:
- Genehmigungsplanung
- Ausführungsplanung
- Ausschreibung/Vergabe
- Bauüberwachung

Besonderheiten:
- Berücksichtigung Ensembleschutz

Bauweise:
Mauerwerk, Trockenbau und Holzbauarbeiten
EG wurde von außen gedämmt (WDVS)
OG Innendämmung zum Erhalt der Ziegelsteinfassade



Zurück zur Projektübersicht


© Dipl.-Ing. Guido Krämer, 2015, Impressum - Datenschutz